- Продаж квартир
- Продаж квартир - Львів - Сковороди, Франківський район - номер 0068760
№ 0068760
Ріелтор з продажу квартир
+38... Показати
К-сть кімнат
2
Ціна (грн)
2 501 427
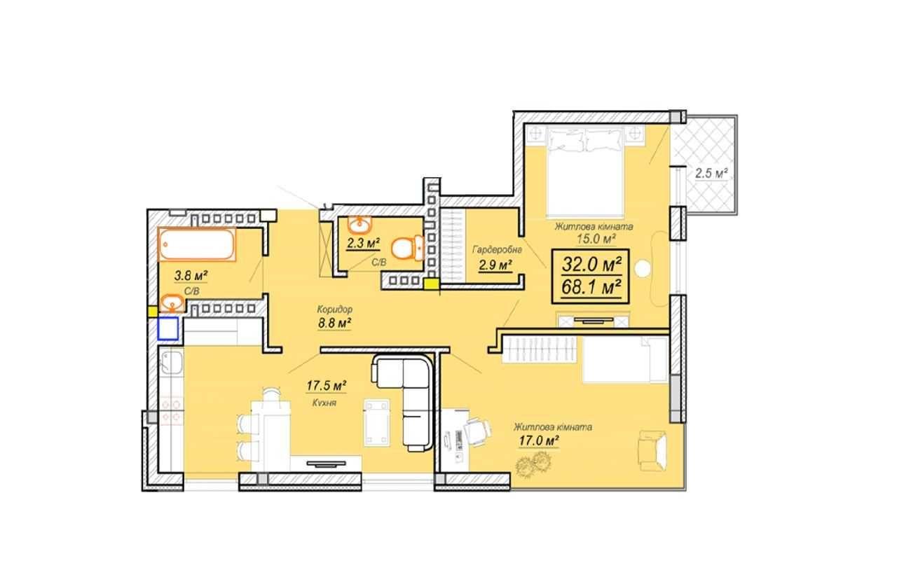
Площа (м2)
68
Основні характеристики
Місто
Львів
Район
Франківський
Вулиця
Сковороди
Житлова площа
0
Площа кухні
0
Поверх
6
Поверховість
6
Стан
0 - цикл
Матеріал
Цегляний
Тип будівлі
Новобудова будується
Детальна інформація
Продається 2x кімнатна квартира 68.1 м.кв в ЖК Grand village, с. Сокільники (кінець вулиці Кульпарківської м. Львів). Поверх 6/6 Балкон є Вигляд з вікон виходять у внутрішній двір Безшумний ліфт Панорамні вікна Відсутні несучі стіни (вільне планування) Висота стін 2,7 м Утеплення мінвата + пінопласт Індивідуальне газове опалення Безкоштовний паркінг, шлагбаум. Будинок на завершальній стадії будівництва Здача в експлуатацію 3-4 квартал 2022. Продаж по переуступці

Сковороди, Львів, Франківський районПоказати на карті









