- Комерційна нерухомість
- Оренда офісу - Львів - Туган-Барановського, Галицький район - номер 0063550
№ 0063550
Ріелтор з комерційної нерухомості
097... Показати
Офіси
—
Ціна (грн)
22 000
Площа (м2)
68
Основні характеристики
Місто
Львів
Район
Галицький
Вулиця
Туган-Барановського
Поверх
1
Поверховість
3
Тип будівлі
Вторинний ринок
Детальна інформація
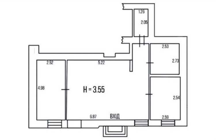
Оренда комерційного приміщення по вул. Туган-Барановського 20, бічна Пекарської (початок, біля «Торгівельно-економічної академії»). Загальна площа приміщення 68 м. Переведено у нежитловий фонд. Високий перший поверх. 1 поверх 4 поверхового цегляного будинку, високі стелі. Фасадний вхід - всі вітрині вікна (4 шт) і вхід . Ролокасети. Три кімнати (дві з яких ізольовані), приміщення для кухні, санвузол (див. план приміщення в фото). Опалення нове індивідуальне - котел. Сигналізація. Сучасний ремонт. Оренда під будь-який бізнес.

Туган-Барановського, Львів, Галицький районПоказати на карті



















