- Продаж будинків
- Продаж будинків - Львів - Бірки, Шевченківський район - номер 0063464
№ 0063464
Стандарт плюс
+38... Показати
К-сть кімнат
3
Ціна (грн)
3 514 402
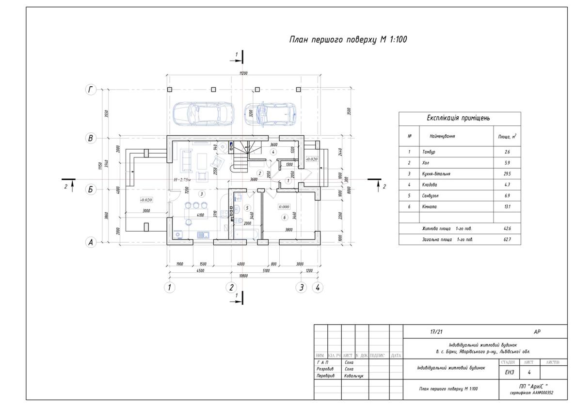
Площа (м2)
125
Основні характеристики
Місто
Львів
Район
Шевченківський
Вулиця
Бірки
Житлова площа
50
Площа кухні
30
Поверховість
2
Стан
0 - цикл
Матеріал
Цегляний
Тип будівлі
Особняк
Детальна інформація
Продається окремо стоячий будинок у с. Бірки. Земельна ділянка 5 сот. в приватній власності до будинку. Площа 125 кв.м. Два поверхи. Гарне планування. Гардеробна. Гараж збоку під накриттям на дві машини. Гарний фасад. До кінця року буде готовий, вже будується другий поверх, залиті сходи. Гарні вікна, гарне планування з терасами, і балконами. Ціна 85 000$

Бірки, Львів, Шевченківський районПоказати на карті






